Posted 10th November 2008 by Kurtis
I’ve been working with the residents of this condo building for some time now to navigate the waters of the local landmarks ordinance with the intention of removing these hideous and poorly built entryway awnings. These things were assumed by the landmarks committee “experts” to be original, and therefore in need of preservation. I’m not sure if they ever did any true survey or research work to come to this conclusion because there was evidence all-over a classical portico that preceded the current installation.

These things are corroded through and besides being an eyesore, they are a burden to maintain and would be impossible to recreate with the condo association’s budget.

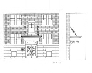
In this photo it is easy to see the “ghost lines” of the former entryway surround with a flat roof. The sheet metal rectangle against the wall is also covering a limestone lintel that would have fit perfectly inside the original surround.

After much back-n-forth with the “experts” at landmarks, we got our approval and demolition began! Further inspection upon demolition revealed even more clues. A cast stone lintel, previously covered by the barrel vault, flanks the doorway. The new design frames the stone lintel.
Posted 31st March 2009 by Kurtis
Things are starting to shape up on the Court. We finished the trim carpentry on one of the two structures today. Here are some photos of the progress:

Corbels installed…


View of the ceiling from the inside.



